寸法調整に細かく対応
ホーム » 寸法について
どんな間口や場所にも、ミリ単位で対応可能。
こだわりや厳しい制約に応えます。
アルテックの建築用装飾アルミは
パターンでも寸法合わせが容易に
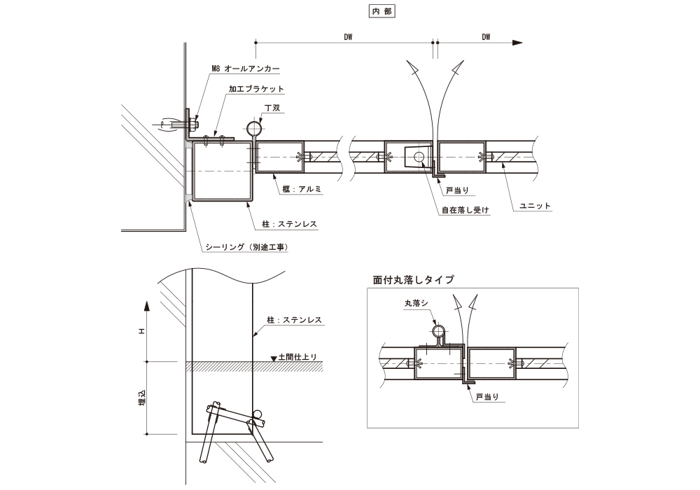
アルテックの建築用装飾金属は、既製のパターンの組み合わせの場合も、寸法に関し、ミリ単位で対応することが可能です。
設計やデザインのこだわりで、どうしてもこの範囲や高さにしたい、という場合など、綿密な計算のもとに製作し、現場での施工で調整も行います。
狭小地や変形地でも
エクステリアで設置可能に
また狭小地や変形地の場合や、法や条例での制約があり、寸法に条件がある場合なども、細かな対応が可能になっています。
完全オリジナル(特別注文仕様)の場合は、もちろん、寸法調整が可能です。すでに図面が作成されていれば、それに合わせ、製作を進めてまいります。
パターン使用、オリジナル、どちらの場合も、どんな間口にも、どんな場所にも、エクステリア、インテリア共に、設置することが可能です。