プロが担当することについて
ホーム » プロが担当
経験豊かな建築用装飾アルミのプロが
どんなご相談にも応じます。
こんにちは。株式会社アルテック営業部第一課の古山と申します。

私はアルテックに入社以来、建築用装飾アルミに携わり、その間、多くの設計士の皆様とお仕事をさせていただき、およそ500件超のご依頼を承ってきました。企画から現場における施工まで、様々なシーンでの課題に関し、設計士の皆様とともに取り組まさせていただく中で、豊富な経験を積み重ねることができました。
工期、コスト、デザイン、施工…。
建築士の方のお悩みに応えます。
その中で、設計士の皆様の、様々なご要望や、お悩みに触れて参りました。設計士の方は、施主様の住まいや店舗など施設の建物に対する、夢や理想、ご希望などを受け、それに少しでも近づけたいと、日々、頭を悩ませていると思います。コストのことや納期のこと、様々な条件など、考慮しなければならない課題は様々です。
それらの課題解決に少しでもお役に立ちたいと、弊社製品をラインナップの中から、何を選択し、どうご提供していけばいいか、コストや納期に合わせた組み合わせや、時にはオリジナルの作成も含め、ご相談に応じてきました。そうした試行錯誤の中で積み重ねた経験を生かし、「アルミのプロ」として、設計士の方のご要望に対し、最適と思われるご提案をしています。
例えば、設計の初期段階からご相談をいただいた場合は、まだ漠然とした施主様のイメージや、あるいは設計士の方のこだわりなどを伺い、建物全体の視点から、いくつかのデザインパターンをご提案させて頂くことが多くなっています。
門扉やフェンスから手摺などまで、
エクステリア、インテリアのプランをご提案
「ヨーロッパのトラディショナルなイメージで、蔦がモチーフとなっているようなもの」と、言葉でイメージを伝えて頂くこともあります。そうした場合、CADを用いてパターンを組み合わせ、大体の寸法がわかっているならば、それに合わせて目に見える図面の形でご提案いたします。
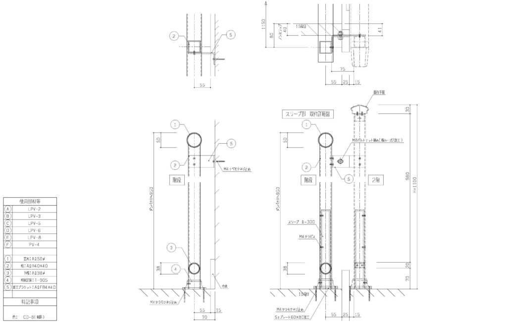
例えば下記のよう階段手摺りの場合、使用している部材は、プレバインシリーズの5種類のパーツによって構成されています。
PV-4
LPV-2
LPV-3
LPV-5
LPV-8
さらに、これらを元に下記のような図面を作成し、ご提案させていただいております。
階段手摺以外にも、門扉やフェンスなども同様に、デザインパターンをご提案することが可能です。設計士の方には、なるべく手間をかけずに、全体の設計案の中に組み込んでいただけるよう、ご要望に沿いながら、サポートいたします。
プランが決まりましたら、スケジュールに沿って製造を行い、納品させていただきます。施工までお任せいただける場合は、現場監督の方とも連携を密にして、施工を進めて参ります。
現場の問題は現場で解決。
不測の事態にも柔軟に対応します。
プロジェクト進行過程においては、計算外の様々なことが多々起こるものです施主様のご要望が、急遽、変更になってしまったり、さらに納期の問題だったり、実際に現地で設置しようとしたら寸法が合わないなどということも起こり得ます。その場合も、なるべくスムーズに、納期や仕様、コストに影響が少なくなるよう、対応できるところは柔軟に対応させていただきます。
以前、あるプロジェクトで、設計士の方から「施主様より意匠を変更したいと言ってきたがどうしよう?」とのご相談を頂きました。すでに製作図面のご承認を頂き、製作にも着手しておりましたが、幸いにも塗装前かつ弊社内で在庫のある鋳物パネルでしたので、ご要望の鋳物パネルに入れ替え、お納め致しました。数多くのデザインパネルを自社で鋳造している強みが発揮できた場面でもあります。
また、現場での施工に際して、こんな例もありました。弊社で門扉を施工引渡後、施主様と元請様で設置後の確認をした際に「色が違う!」という事態が発生したのです。原因は元請様と施主様との行き違いではありましたが、連絡を受け即刻引き取り、再塗装の上、2日後には改めて施工することができました。これは自社で塗装工場を持っているからこそできる対応でもあります。
私は、長年、建築用装飾アルミに携わってきた中で、おかげさまで様々な経験をさせていただきました。そこから得た、様々な問題解決のためのノウハウもフルに活用しながら、アルテックの製品をより愛していただき、建築に活かしていただきたいと考えております。
アルテックは全国対応となっております。私も必要とあれば、全国にお伺いいたしますので、お気軽にご相談ください。